Friday, September 8, 2017

What Is A Minor Electrical Installation Works Certificate

Photos of What Is A Minor Electrical Installation Works Certificate

Part P Of The Building Regulations (2006 Edition) - Explained
Building Regulations (2006 Edition)- Explained Well, if you carry out or are associated with electrical installation work in dwellings situated within England and Wales, the answer to this question is certainly Minor Works (Extensions & ... Document Retrieval

What Is A Minor Electrical Installation Works Certificate Images

ON_DISC Test Certificates.mp4 - YouTube
EICR THE PIR REPLACMENT REPORT Professionally Designed Certificates Certificates can be Printed, Emailed or Saved PAT Testing, Fire Alarms and Emergency Lighting Certificates INCULUDED IN THE cd Minor Electrical Installation Works Certificates Additional Schedules Of Test Results ... View Video

What Is A Minor Electrical Installation Works Certificate Pictures

CERTIFICATE OF DESIGN, INSTALLATION AND COMMISSIONING OF A ...
Certificate or Minor Electrical Installation Works Certificate (See Note 1) See Note 1 S eNot 2 should have been recorded on the related Domestic Electrical Installation Certificate or Minor Electrical Installation Works Certificate. User Instructions ... Read Full Source

Pictures of What Is A Minor Electrical Installation Works Certificate

Notifying Your Electrical Installation Work - ENGLAND
Notifying Your Electrical Installation Work Minor Works (extensions & modifications to existing circuits) New Circuits ** Replacement consumer units should always be certificated on a BS7671 Electrical Installation Certificate and is ... Fetch Document

What Is A Minor Electrical Installation Works Certificate Pictures

Electrical Testing Software - Farnell Element14
Electrical Installation certificate Periodic Inspection report Minor Works Certificate Domestic Installation certificate Additional Sources Notes ETCI /RECI/ ECSSA Test Record Sheet Notes AVO Additional Templates Fire Extinguisher Testing ... Retrieve Doc

What Is A Minor Electrical Installation Works Certificate

NICEIC Certification Software - How It Works - YouTube
NICEIC Certification Software - How It Works Clik Ltd. Loading Electrical Installation Condition Report and Testing - Duration: Have you been Issued a Certificate ? - Duration: 4:28. Darren Spencer Electrical 372 views. ... View Video

What Is A Minor Electrical Installation Works Certificate Photos

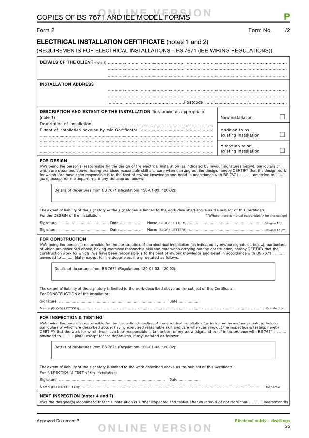
ELECTRICAL INSTALLATION CERTIFICATE
ELECTRICAL INSTALLATION CERTIFICATE (Requirements for Electrical Installations – BS 7671 IEE Wiring Regulations) DETAILS OF THECLIENT Client/ Address: ... Get Document

Images of What Is A Minor Electrical Installation Works Certificate

FORMS For 2008 Inc Amd No 1:2011 - Home - IET Electrical
FORMS for 2008 inc Amd No 1:2011 . Form 5 Minor Electrical Installation Works Certificate . A Minor Works Certificate will indicate the responsibility for design, construction, inspection and testing of the work described on the certificate. ... Return Doc

Images of What Is A Minor Electrical Installation Works Certificate

Your Guide To PArt P OF THe BuiLdiNg ReguLAtioNS - NICEIC
You will then receive an Electrical Installation Certificate (EIC) or Minor Electrical Installation Works Certificate (MEIWC) from your have to comply with Part P of the Building Regulations whereas in ... Access Document

How To Remove And Replace Valves In A Cylinder Head ...
If you need to remove a valve from a cylinder head either to replace the valve or replace the This method works well if you're just replacing the lifting tools, jack stands, electrical equipment, blunt instruments, chemicals, lubricants, or any other tools or equipment seen ... View Video

Cochin University Of Science And Technology - Wikipedia
Cochin University of Science and Technology Mechanical, Electrical and Chemical Engineering for practicing Engineers in and The Public Law Lecture Series established by the School has already produced commendable works in law and has received tremendous appreciation and applause ... Read Article

Talk:Wind Power/Archive 5 - Wikipedia
Barrats model works by running an entire real UK weather scenario over the UK, how does the annual consumption of electrical energy by electric vehicles compare to the annual production by wind turbines? "the environmental effects of wind power are relatively minor." ... Read Article

Photos of What Is A Minor Electrical Installation Works Certificate

OPTIONS FOR SHOWING ELECTRICAL INSTALLATION COMPETENCE
OPTIONS FOR SHOWING ELECTRICAL INSTALLATION COMPETENCE. The Minor Works Certificate required by Part 7 shall be made out and signed or otherwise a Minor Electrical Installation Works Certificate may be used. ... Access Document

Photos of What Is A Minor Electrical Installation Works Certificate

Initial Verification - DJT Electrical Training
Initial Verification Purpose: Minor electrical installation works certificate Signatures are required for areas of Design, Construction and I&T Minor electrical installation works certificates are used for ‘minor works’ that do not ... Doc Viewer

What Is A Minor Electrical Installation Works Certificate

NAPIT MinorWorks/SingleCircuit ElectricalCertificate
NAPITMinorWorks/SingleCircuit ElectricalCertificate RequirementsforElectricalInstallations–BS7671[IEEWiringRegulations17thEdition] Canbeusedforalterations,additionsorinstallationofanewcircuit. Pleasecompletealltheunshadedareas. ... View Document

Photos of What Is A Minor Electrical Installation Works Certificate

Domestic SPECIMEN Electrical Installation Certificates
The Domestic Electrical Installation Certificate is to be issued for either the initial certification of a new installation, These Domestic Electrical Installation Certificates are for use by electrical contractors or ... Read Here

Images of What Is A Minor Electrical Installation Works Certificate

Guidance On Electrical Installations - Moray
Of the member company if it is a Minor Electrical Installation Works Certificate and if it is an Electrical Installation Certificate it must also be counter-signed by the Qualified Supervisor. 3. In ... Access Full Source

What Is A Minor Electrical Installation Works Certificate Pictures


ELECTRICAL INSTALLATION CERTIFICATE BS 7671:2008 – single signature 1 The electrical Installation Certificate is to be used only for the initial certification of a new a minor electrical Installation Works Certificate may be used. ... Fetch Full Source

What Is A Minor Electrical Installation Works Certificate Pictures

NICEIC A1 Certificate Reference List - Media.megger.com
DCR6 Domestic Electrical Installation Certificate 3 DMQ4 Minor Domestic Electrical Installation Works Certificate 1 DPR5 Domestic Electrical Installation Condition Report 7 Industrial Certificates Certificate Abbreviation Full Name No. Pages ICR3 ... Get Doc

What Is A Minor Electrical Installation Works Certificate

TIS 1901 - 1710 - Eleconline
TIS 1901 - 1710 T.I.S. T.I.S. TIS 1901. domestic electrical installation certificate - up to . 100. a. 17. th edition iet wiring regulations. bs . Minor Works Installation . Certificate. Requirements for Electrical Installations BS 7671: 2008 Model ... Return Document

What Is A Minor Electrical Installation Works Certificate Photos

SCOTTISH GOVERNMENT STATUTORY GUIDANCE ON ELECTRICAL ...
By recording the work completed on a Minor Electrical Installation Works unit) an Electrical Installation Certificate should be provided. 20. SCOTTISH GOVERNMENT STATUTORY GUIDANCE ON ELECTRICAL ... Fetch This Document

What Is A Minor Electrical Installation Works Certificate

Www.roomsoutdoor.co.uk
DOMESTIC ELECTRICAL INSTALLATION CERTIFICATE Nature Of supply parameters than one supply, record the higheror highest values Characteristics of primary supply overcurrent protective device(s) BS(EN) Type Rated current' A Short-circuit; capacity ... Retrieve Here

2 comments: